Új Élet Ingatlaniroda

Újszerű!
Újszerű
KAPCSOLAT
Barsi Judit


+36 30 691

barsi.judit@

Az időpont kérés naptár ikonja
IDŐPONTOT KÉREK
A visszahívás kérés telefon ikonja egy azt körbe ölelő nyíllal
VISSZAHÍVÁST KÉREK
Ajánlom egy ismerősömnek ikon
AJÁNLOM EGY ISMERŐSÖMNEK
Facebook megosztás ikon
MEGOSZTÁS

KAPCSOLATFELVÉTEL

Küldés

Az üzenetet sikeresen elküldtük!
Hiba történt!
INGATLAN ADATAI

Ingatlan jellege

téglalakás

Belső terület

25 m²

Tájolás

délkelet

Építési állapot

újszerű

Építési mód

tégla

Szobák száma

1 szoba

Kert

(közös kerthasználat)

Erkély

1 m²

Emelet

5.

Az ingatlan a legfelső szinten van.

Épület szintje

5.

Épült

2017

Lift

van

Ingatlan állapot

kívül: újszerű
belül: újszerű

Szigetelés

10 cm

Fűtés

központi egyedi méréssel

Komfort

összkomfort

Parkolás

van teremgarázs

Energetika

B 2024:

Az időpont kérés naptár ikonja
HTML
Az időpont kérés naptár ikonja
PDF
Eladó újszerű téglalakás
Ingatlan azonosító:
1595_ujei

Budapest, IX. kerület, Telepy

Irányár

43.3 M Ft

Szobák

1 szoba

Emelet

5

Terület

25 m²
INGATLAN LEÍRÁSA
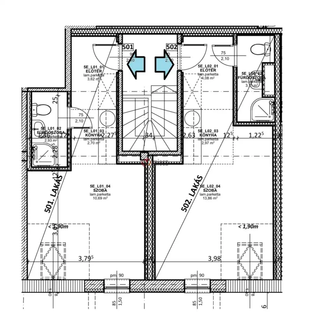
A 9. kerületben, a Telepy utcában, a METRÓTÓL SÉTATÁVOLSÁGRA eladó, egy jogilag ÚJ ÉPÍTÉSŰnek minősülő, 5 emeletes, szigetelt, liftes épületben, 80 db lakás, mely mindegyike SAJÁT HELYRAJZI SZÁMMAL és HASZNÁLATBAVÉTELI ENGEDÉLLYEL RENDELKEZIK. (Már a bő 80%-át megvették. De most még 10-15 db lakás közül lehet választani!)

Vannak még 1 SZOBÁS,
- 24 m2 + 6 m2 erélyes,
- 27 m2 + 6 m2 erkélyes, és
- tetőtéri (nettó 21-23 m2, bruttó 26-29m2) erkély nélküli lakások.
(A legkedvezőbb árú lakás, nettó 21 m2-es, bruttó 27 m2-es a tetőtérben és az ára 41,5 M Ft.)

...és vannak még 1+1 SZOBÁS
- 36-40 m2-es erkély nélküli, és
- 42-43 m2 + 3 m2 erkéllyel rendelkező lakások.

A lakások m2 árai különbözőek és hitelre is megvásárolhatóak.

Fizikailag 8 éve épült a ház.
...egyébként bérbeadási céllal, és 2025 elejéig bérbe is volt adva minden egyes lakás. Eddig egy helyrajzi számon volt az egész épület, de most kaptak saját helyrajzi számot a lakások és ezért minősülnek jogilag új építésűnek. ...és így az ár 5% áfát tartalmaz.

Ráadásul AZ ÖN ÍZLÉSE SZERINT, frissen FELÚJÍTVA vásárolhatóak meg ezek az ingatlanok.
(Azért kerülnek felújításra, mert eddig nem voltak lakásonként mérőórák, és pl. az új vízórák miatt a fürdőszobákat mindenképp "szét kell verni" és ugyanolyan csempét mát nem lehet venni...)

Az összes burkolat, az ajtók és a szaniterek is (zuhanykabin, mosdó, wc csésze) cserélve lesznek arra, amit ön választ, sőt megmondhatja, hová szeretné a mosógép kiállást, és hová szeretne konnektorokat, stb...
AZ ÁR A FRISSEN FELÚJÍTOTT INGATLANRA ÉRTENDŐ.

A műszaki leírás tartalmazza, hogy milyen összegig van benne a felújítás az árban.
Pl. a laminált padló 6.500 Ft/m2, a fürdőszobai padló és falburkolat 10.000 Ft/m2 árig, stb.
A felújításhoz 1-2 hónapra szükség van. Azt követőn egyből költözhet.

Van egy nagy méretű BELSŐ UDVAR is, amit közösen használhatnak a lakók. Így ha ön olyan lakást vesz, aminek nincs erkélye, akkor is ki tud menni a szabad levegőre anélkül, hogy az utcára ki kellene lépnie. Ráadásul a 4. emeleten még egy közös erkély is helyet kapott. Azoknak a dohányzó embereknek, akik erkély nélküli lakást vesznek, ez biztosan nagy segítség. Majdnem olyan mintha saját erkélye lenne.

A lakások NAGYON VILÁGOSAK, mivel nem egy szűk kis sötét utcára néznek, hanem tágas térre, a Telepy utca és a Haller utca találkozásánál lévő kis parkosított részre.

A FŰTÉS HÁZKÖZPONTI, radiátorokon keresztül ad meleget, és a vízmelegítést is a központi kazán végzi.
Légkondicionáló nincs.
Konyhabútor nincs benne az árban.
A közös költség 600 Ft/m2.
A házban a teremgarázsban kocsibeállók és a felső emeleteken kis tárolók is eladók.

MINTALAKÁSKÉNT 2 DB FELÚJÍTÁSRA KERÜLT.
Élőben meg tudom mutatni ezeket is és bármelyik lakást, ami még eladó. Ez utóbbiaknál még hozzá kell képzelni a felújítást az ön által választott burkolatokkal.

A földszinten eladó még 2 db utcafronti üvegportálos ingatlan is, ami jogilag tároló, de fizikailag üzlethelyiség/iroda/lakás kialakítású. (Végezhető benne hivatalosan kereskedelmi és szolgáltató tevékenység is.) Mindkét tároló 62 m2, és a m2 áruk nettó 945.000 Ft, bruttó 1.200.000 Ft. Azaz ezek 27% áfát tartalmaznak. Tehát nettó 58,6 M Ft, bruttó 74,4 M Ft az áruk.

A Nagyvárad téri METRÓ 5-8 perc sétára van. Ugyanígy közel vannak az orvosi egyetem, a közszolgálati egyetem a Semmelweis kórház.

Ha érdekli, akkor hívjon akár az esti órákban, vagy akár hétvégén is!

INGATLAN ADATAI

Ingatlan jellege
téglalakás
Belső terület
25 m²
Tájolás
délkelet
Építési állapot
újszerű
Építési mód
tégla
Szobák száma
1 szoba
Kert
(közös kerthasználat)
Erkély
1 m²
Emelet
5.
Az ingatlan a legfelső szinten van.
Épület szintje
5.
Épült
2017
Lift
van
Ingatlan állapot
kívül: újszerű
belül: újszerű
Szigetelés
10 cm
Fűtés
központi egyedi méréssel
Komfort
összkomfort
Parkolás
van teremgarázs
Energetika
B 2024:
TÉRKÉP

Budapest, IX. kerület, Telepy

KAPCSOLAT
Barsi Judit
Barsi Judit


+36 30 691 0408

barsi.judit@gmail.com

KAPCSOLAT
Barsi Judit

+36 30 691

barsi.judit@

Az időpont kérés naptár ikonja
IDŐPONTOT KÉREK
A visszahívás kérés telefon ikonja egy azt körbe ölelő nyíllal
VISSZAHÍVÁST KÉREK
Ajánlom egy ismerősömnek ikon
AJÁNLOM EGY ISMERŐSÖMNEK
Facebook megosztás ikon
MEGOSZTÁS

KAPCSOLATFELVÉTEL

Küldés

Az üzenetet sikeresen elküldtük!
Hiba történt!
INGATLAN ADATAI

Ingatlan jellege

téglalakás

Belső terület

25 m²

Tájolás

délkelet

Építési állapot

újszerű

Építési mód

tégla

Szobák száma

1 szoba

Kert

(közös kerthasználat)

Erkély

1 m²

Emelet

5.

Az ingatlan a legfelső szinten van.

Épület szintje

5.

Épült

2017

Lift

van

Ingatlan állapot

kívül: újszerű
belül: újszerű

Szigetelés

10 cm

Fűtés

központi egyedi méréssel

Komfort

összkomfort

Parkolás

van teremgarázs

Energetika

B 2024:

Az időpont kérés naptár ikonja
HTML
Az időpont kérés naptár ikonja
PDF
Budapest, IX. kerület - Rehabilitációs terület
Budapest, IX. kerület - Rehabilitációs terület
Budapest, IX. kerület - Rehabilitációs terület
Budapest, IX. kerület - Rehabilitációs terület
Budapest, IX. kerület - Rehabilitációs terület
Budapest, IX. kerület - Rehabilitációs terület
Budapest, IX. kerület - Rehabilitációs terület
Budapest, IX. kerület - Rehabilitációs terület
Budapest, IX. kerület - Rehabilitációs terület
Budapest, IX. kerület - Rehabilitációs terület
Budapest, IX. kerület - Rehabilitációs terület
Budapest, IX. kerület - Rehabilitációs terület
Budapest, IX. kerület - Rehabilitációs terület
Budapest, IX. kerület - Rehabilitációs terület
Budapest, IX. kerület - Rehabilitációs terület
Budapest, IX. kerület - Rehabilitációs terület
Budapest, IX. kerület - Rehabilitációs terület
Budapest, IX. kerület - Rehabilitációs terület
Budapest, IX. kerület - Rehabilitációs terület
Budapest, IX. kerület - Rehabilitációs terület
Budapest, IX. kerület - Rehabilitációs terület
Budapest, IX. kerület - Rehabilitációs terület
Budapest, IX. kerület - Rehabilitációs terület
Budapest, IX. kerület - Rehabilitációs terület
Budapest, IX. kerület - Rehabilitációs terület
Budapest, IX. kerület - Rehabilitációs terület
Budapest, IX. kerület - Rehabilitációs terület
Budapest, IX. kerület - Rehabilitációs terület
Budapest, IX. kerület - Rehabilitációs terület
Budapest, IX. kerület - Rehabilitációs terület